Prodej, vila, Pardubice, 408m2 (plocha pozemku 818m2), balkón

Popis nemovitosti

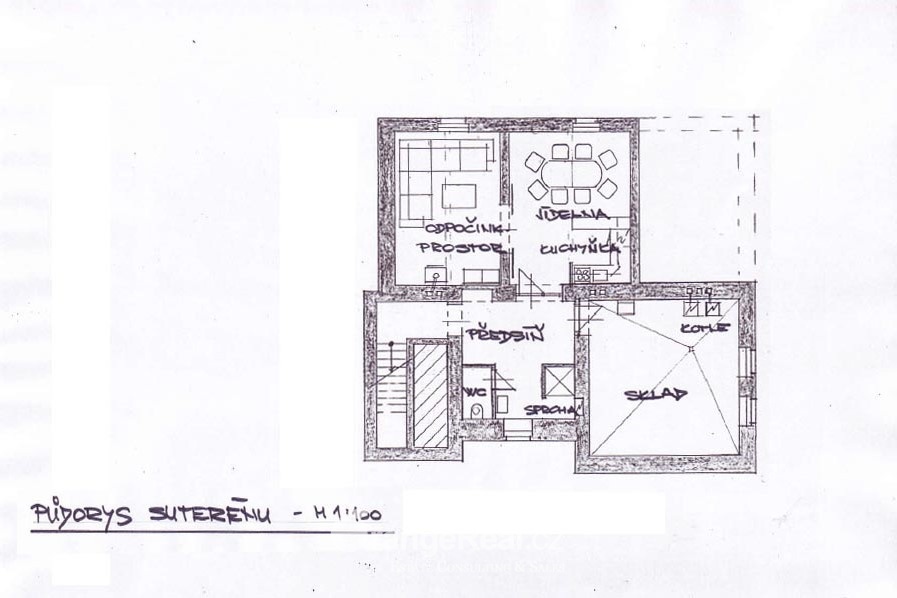
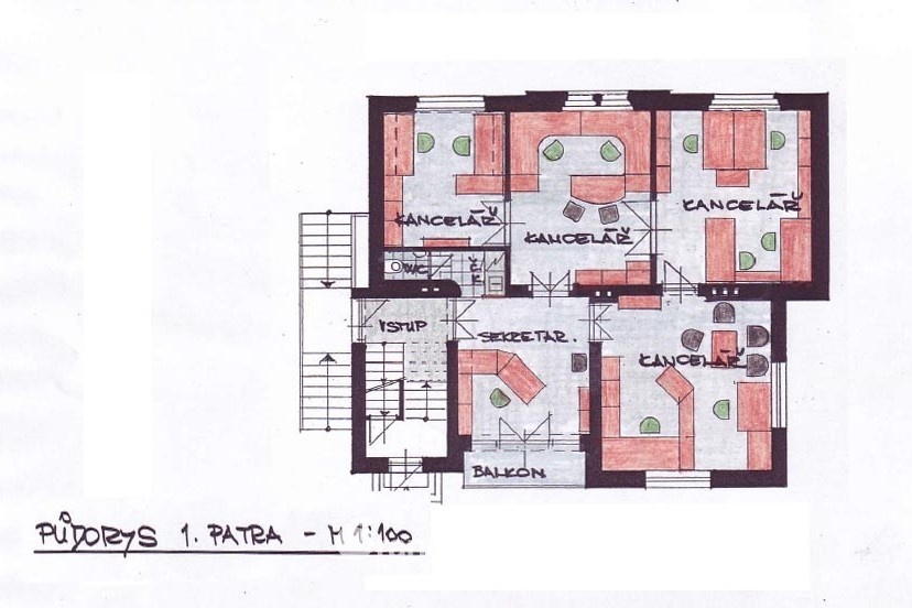
Nabízíme k prodeji prvorepublikovou zrekonstruovanou vilu, umístěnou v klidné čtvrti vyhledávané lokality Pardubice – Bílé Předměstí, o celkové užitné ploše 408m2, umístěná na pozemku o rozloze 818m2. Vila byla rekonstruována průběžně v letech 1996 až 2007 s důrazem na kvalitu stavebních materiálů. V I. a II. NP se nacházejí vždy 4 kanceláře, recepce, kuchyňka a toaleta. III. NP je koncipováno jako open-office s vlastní toaletou a kuchyňským zázemím a je plně klimatizované. V I. PP se nachází dvě místnosti, plně vybavené kuchyňské zázemí s jídelnou, toaleta a sprchový kout. Vytápění domu a ohřev vody zajišťuje plynový kotel, podlahové krytiny – keramická dlažba, plovoucí podlaha a koberce. Každé patro má vlastní měření elektrické energie. Na uzavřeném pozemku se nachází privátní parkoviště, vytvořeno 8 parkovacích míst. Tento vysoce kvalitní dům je vhodný pro reprezentativní sídlo firmy, popř. jako výhodná investice se solidním měsíčním výnosem, při pronájmu prostor. Nabízí se zde i možnost přebudování zpět na bydlení, i vícegenerační. V místě veškerá občanská vybavenost, ZŠ, MŠ, gymnázium, lékař, obchody, restaurace a další. Výborná dopravní dostupnost do centra města, které je i v pěší vzdálenosti. Doplňující informace u obchodníka společnosti. Doporučujeme navštívit virtuální prohlídku na web stránkách naší společnosti.
Cena: Na vyžádání
Prodej
Zrealizováno

Typ objektu: Dům
Stav: Po rekonstrukci
Užitná plocha: 408 m2
Plocha pozemku: 818 m2
Evidenční číslo: ORKS0075
Stavební prvek: Cihla
Balkón: Ano
Sklep: Ano
Plyn: Zaveden
Topení: Ústřední plynové
Voda: Vodovod
Parkovací stání: 8
Energetická náročnost: E
Zobrazit více položek

Kontakt na obchodníka

Kontaktní formulář