Prodej, historický činžovní dům, Chrudim, Štěpánkova ul., 450m2

Popis nemovitosti

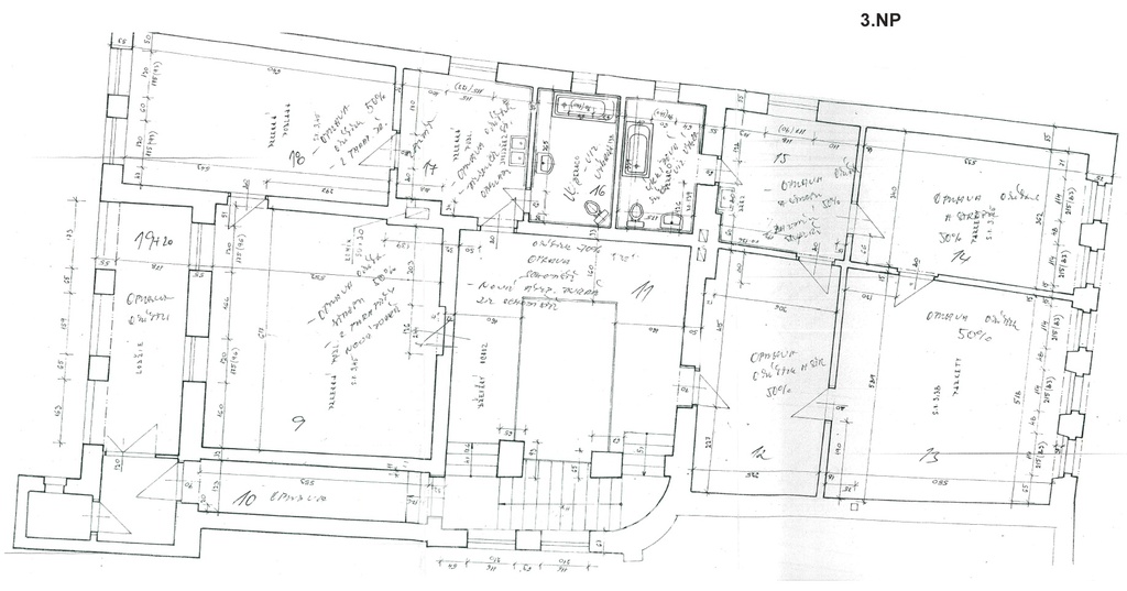
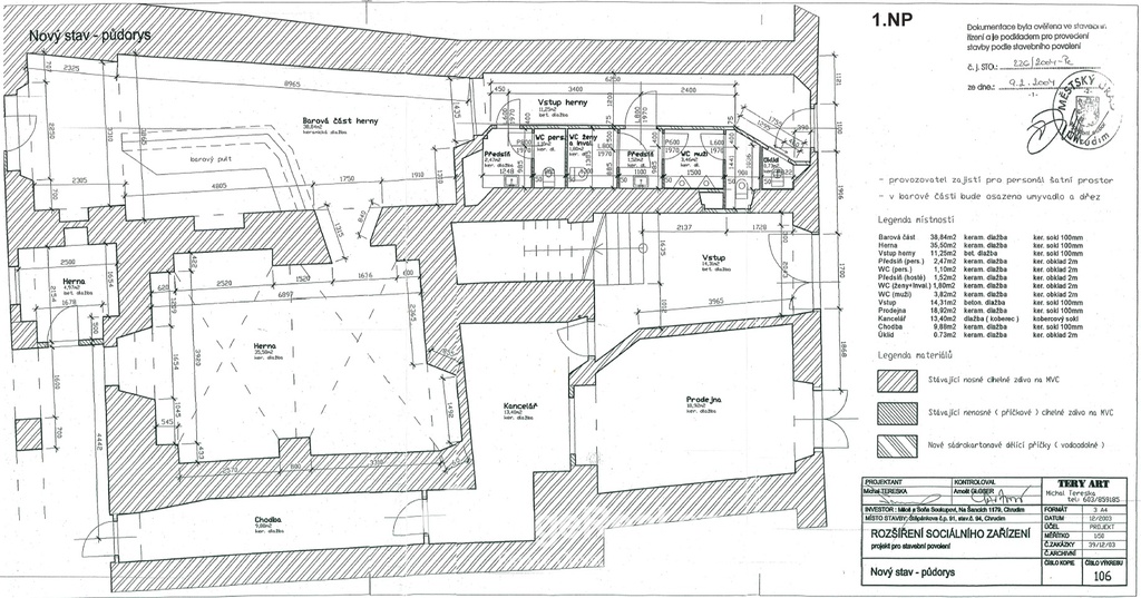
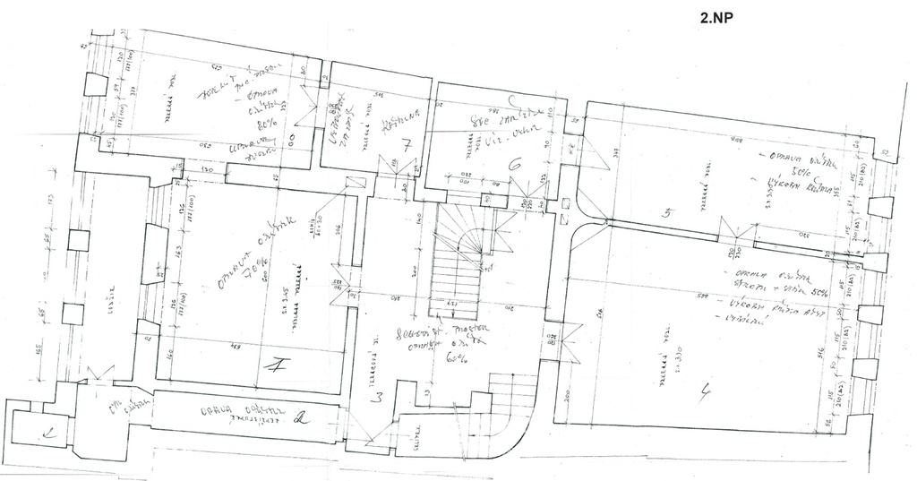
Výhradně nabízíme k prodeji historický dům v samém centru města Chrudim, Štěpánkova ulice. Dům s podloubím, o celkové ploše 450m2, doznal zásadních stavebních úprav v roce 1918 přistavěním III. NP, s pořízením nové střechy a mimo jiné i fasády obohacené štukatérským řemeslem. V roce 2004 došlo k rekonstrukci I. NP, kde se nacházejí komerční prostory o celkové výměře 153,5m2. V uplynulých letech došlo k rekonstrukci sociálních zařízení v každém podlaží. Plyn zaveden do domu v roce 1994. Dům je napojen na veřejný vodovod, odpad a elektřinu. Dům sestává ze 3 nadzemních podlaží, 1 podzemního podlaží a plnohodnotného půdního prostoru, vybízejícího k další vestavbě. Prostorově velkorysá vstupní hala ústí k původnímu pískovcovému schodišti s kovaným zábradlím, které propojuje jednotlivá patra. Na dům navazuje zahrada o výměře 160m2, obehnána městskými valy. Dům je v uskopojivém stavu, nicméně by byla vhodná rekonstrukce zásadního charakteru, případně s vybudováním luxusních bytových jednotek. Chrudim je město střední velikosti ležící na rozhraní Železných hor a Polabské nížiny, 110 km východně od Prahy, 10 km jižně od krajského města Pardubic a 33 km od Hradce Králové. Význam polohy města Chrudim, jako rozvojového faktoru umocňuje fakt, že se nachází v těsném zázemí metropolitního areálu hradecko-pardubické aglomerace. Dopravní spojení se jmenovanými městy a okolními obcemi bus, vlak. Doprava po městě Chrudim MHD. Veškerá občanská vybavenost v místě. Doporučujeme navštívit virtuální prohlídku na webu naší společnosti. Doplňující informace u obchodníka společnosti.
Cena: 5 750 000 Kč
Prodej
Zrealizováno

Typ objektu: Činžovní dům
Stav: Před rekonstrukcí
Užitná plocha: 450 m2
Postaveno: 1918
Evidenční číslo: ORKS0127
Stavební prvek: Cihla
Plyn: Zaveden
Voda: Vodovod
Energetická náročnost: G
Zobrazit více položek

Kontakt na obchodníka

Kontaktní formulář