Prodej, byt, Praha 4, 5+1, 245m2, balkón, garáž

Popis nemovitosti

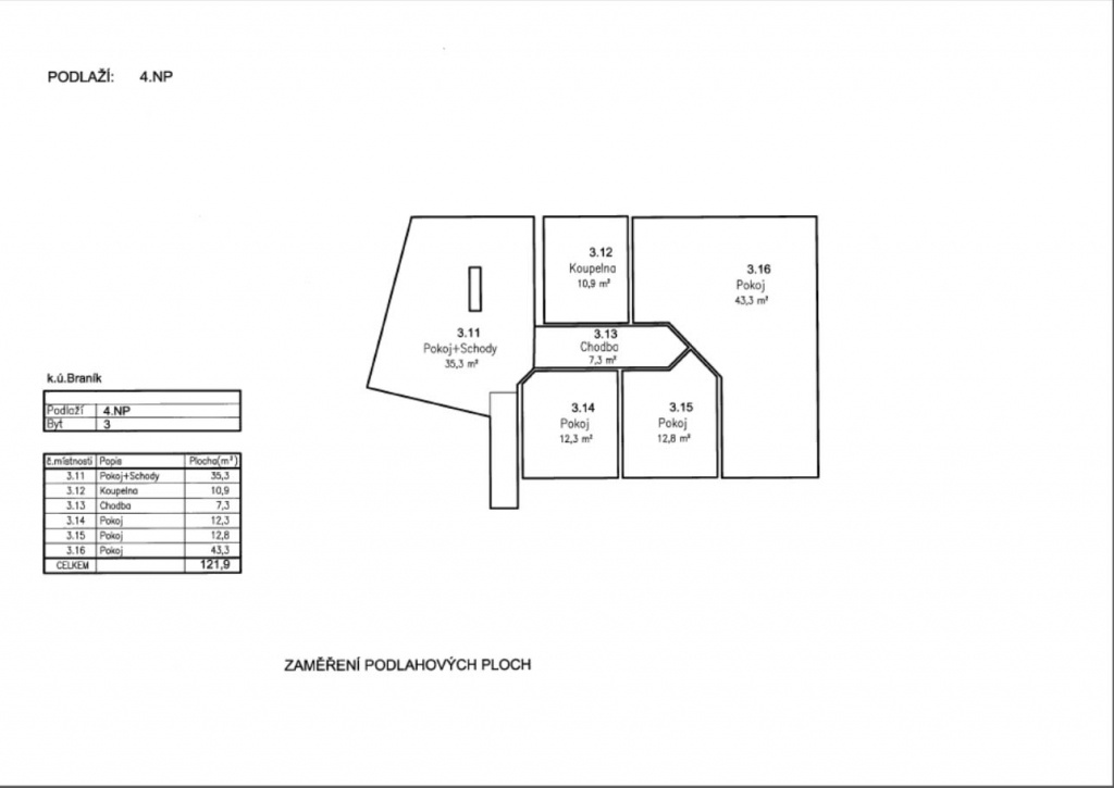
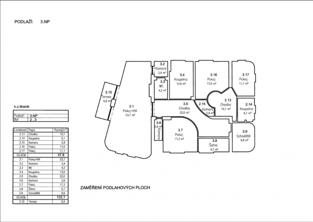
Naše společnost výhradně nabízí k prodeji luxusní, mezonetovou, prostorově velmi velkorysou, bytovou jednotku, dispozičně 5+1+galerie+balkon, o celkové podlahové ploše bytu 245,4m2+balkon 6,9m2+garáž 35m2. Byt je umístěn ve 2. patře bytového viladomu, o 4 bytových jednotkách, v prestižní lokalitě Praha 4, Braník, Jiráskova čtvrť. Ze vstupní haly bytu je možno vstoupit do obytného pokoje se šatnou, do koupelny s toaletou a dále na samostatnou toaletu. Centrální část bytu se nachází v čele vstupní haly. Zde je propojen obývací a jídelní prostor s kuchyňským zázemím a odtud vcházíme na terasu, s překrásným výhledem na Pražský hrad, Kavčí hory a Barrandovské skály. Z obývacího prostoru vystoupáme po masivním dřevěném schodišti do patra bytu, kde z galerie je přístup do tří obytných místností a koupelny s toaletou. K bytu dále přináleží sklep 5,4m2 v 1. PP domu a spoluvlastnické podíly na společných částech domu, na pozemcích souvisejících s budovou a na zahradě za domem. Při výstavbě bytové jednotky byly použity stavební materiály a zařizovací předměty nejvyšší kvality: dřev. okna, dveře, schodiště, plovoucí podlahy, španělské obklady a dlažby. Vytápění bytu zajišťuje vlastní plynový kotel s rozvodem do radiátorů. Byt je vybaven zabezpečovacím zařízením. Dům je zasazen do bujné zeleně Branického lesa, zahrada je obehnána zděným plotem. Bytový viladům skýtá maximum soukromí a klidu, přičemž se nachází nedaleko přímého centra Prahy. Viladům spravuje funkční Společenství vlastníků. Veškerá občanská vybavenost v pěší, či menší dojezdové vzdálenosti – obchodní a sportovní centra, ZŠ, MŠ, poliklinika. Stanice MHD se nachází nedaleko domu. Bydlení pro náročné za minimální cenu. Doplňující informace u obchodníka společnosti.
Cena: 8 890 000 Kč
Prodej
Zrealizováno

Typ objektu: Byt
Dispozice: 5+1
Stav: Velmi dobrý
Užitná plocha: 245 m2
Vlastnictví: Osobní
Postaveno: 2002
Evidenční číslo: ORKS0025
Stavební prvek: Cihla
Balkón: Ano
Sklep: Ano
Plyn: Zaveden
Topení: Ústřední plynové
Voda: Vodovod
Parkovací stání: 2
Zobrazit více položek

Kontakt na obchodníka

Kontaktní formulář