Prodej, byt, Pardubice, 4+kk, 124m2, Nám. Čs. Legií

Popis nemovitosti

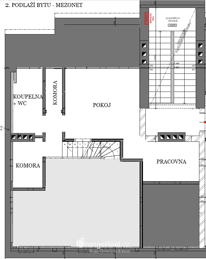
Výhradně nabízíme k prodeji novostavbu (energ. tř. B) nadstandardního mezonetového bytu dispozičně 4+kk, o ploše 124m2, v bonitní a vyhledávané lokalitě Pardubice – Náměstí Čs. Legií, umístěného ve III. patře zděného domu, pořízení výtahu v řešení SVJ. Byt zkolaudován, připraven k nastěhování (novostavba - kupující nehradí daň z nabytí). Byt sestává z prostorově velkorysé vstupní chodby, koupelny disponující vanou i sprchovým koutem, samostatné toalety, tří samostatných neprůchozích pokojů, centrální místnosti, kde se nachází kuchyňské zázemí/kuch. linka Oresi v hodnotě 90.000,- Kč v ceně/, jídelní a obývací prostor, z něhož vede schodiště do II. podlaží bytu. Zde je umístěn jeden z pokojů s oddělenou pracovnou, koupelna s toaletou a další dvě samostatné úložné komory. Byt je orientován na jih a sever. Při výstavbě byl kladen důraz na kvalitu použitých materiálů. Ohřev vody elektrickým kotlem se zásobníkem, vytápění zajišťují podlahové elektrické rohože Fénix s možností regulace teploty v každé místnosti samostatně (nízké náklady na energie). Dveře Sapeli, okna Velux, kvalitní plovoucí podlahy, v koupelnách a na toaletách dlažba + obklady, sanita Grohe. Příprava na osazení klimatizačních jednotek a EZS. K bytu dále přináleží sklep v I. PP domu a vlastnický podíl na průchozí zahradě před domem. Dům je umístěn ve vnitrobloku, čímž majitelům tohoto bytu zajišťuje maximální soukromí, klid a bezpečí v kombinaci s bydlením v přímém centru města Pardubice. Za domem udržovaná společná zahrada o výměře 400m2. Dům průběžně revitalizován – nová střecha 2017, nové rozvody vody a odpadů, nová vodovodní přípojka. Umístění bytu v samém centru města, veškerá občanská vybavenost – MŠ, ZŠ, VŠ, poliklinika, obchodní centrum ATRIUM, vlak - bus, MHD v docházkové vzdálenosti. Výborná dostupnost všech ostatních částí města, i nájezdu na D11. Parkování před domem na rezidenční karty. Doplňující informace u obchodníka společnosti. Doporučujeme navštívit virtuální prohlídku bytu na stránkách naší společnosti.
Cena: Na vyžádání
Prodej
Zrealizováno

Typ objektu: Byt
Dispozice: 4+kk
Stav: Novostavba
Užitná plocha: 124 m2
Vlastnictví: Osobní
Postaveno: 2018
Evidenční číslo: 00154
Stavební prvek: Cihla
Sklep: Ano
Topení: Ústřední elektrické
Voda: Vodovod
Energetická náročnost: B
Zobrazit více položek

Kontakt na obchodníka

Kontaktní formulář